3rd Place, Canadian Academy of Architecture for Justice 2019 Student Design Competition
with Stephanie Janeiro and Brandon DaCosta


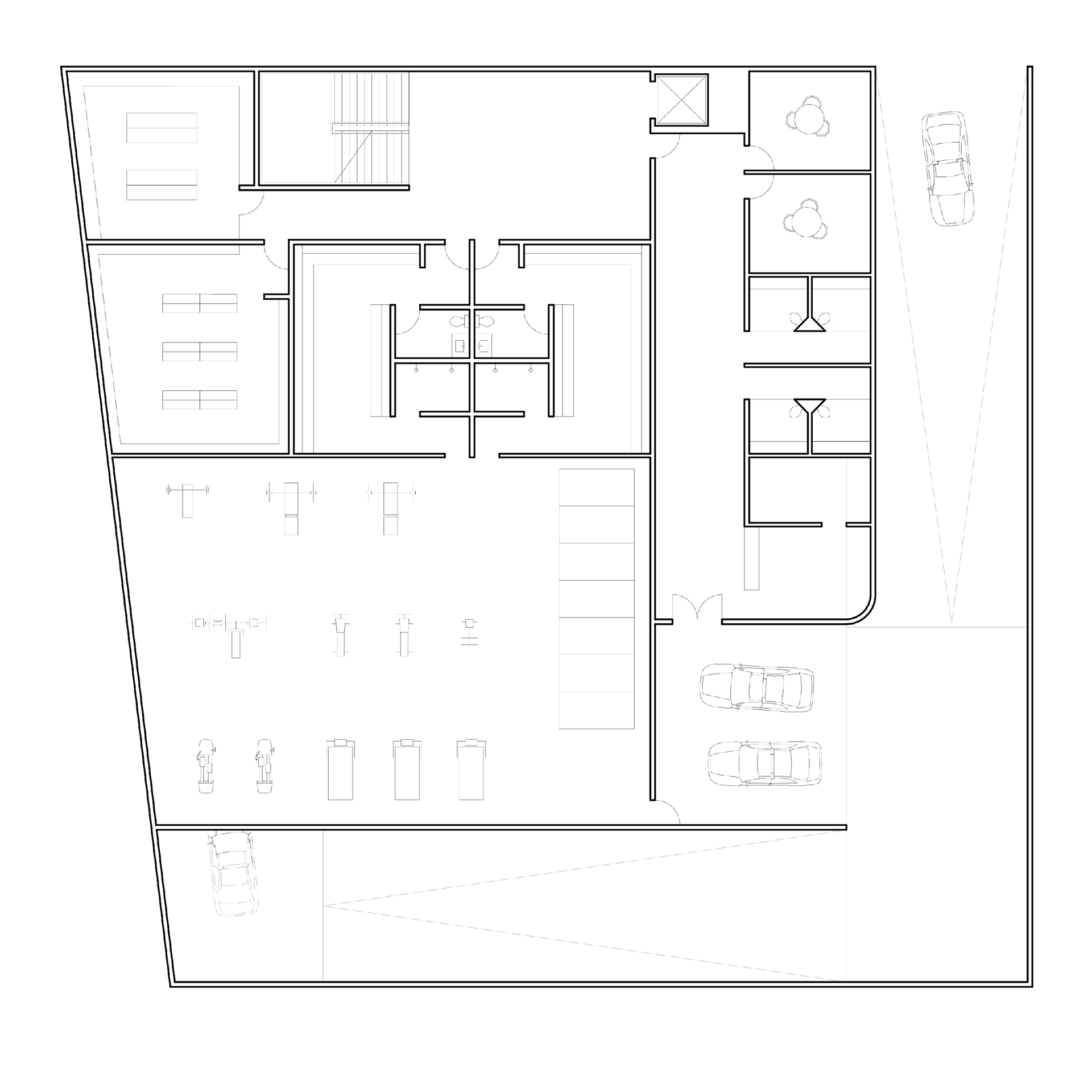
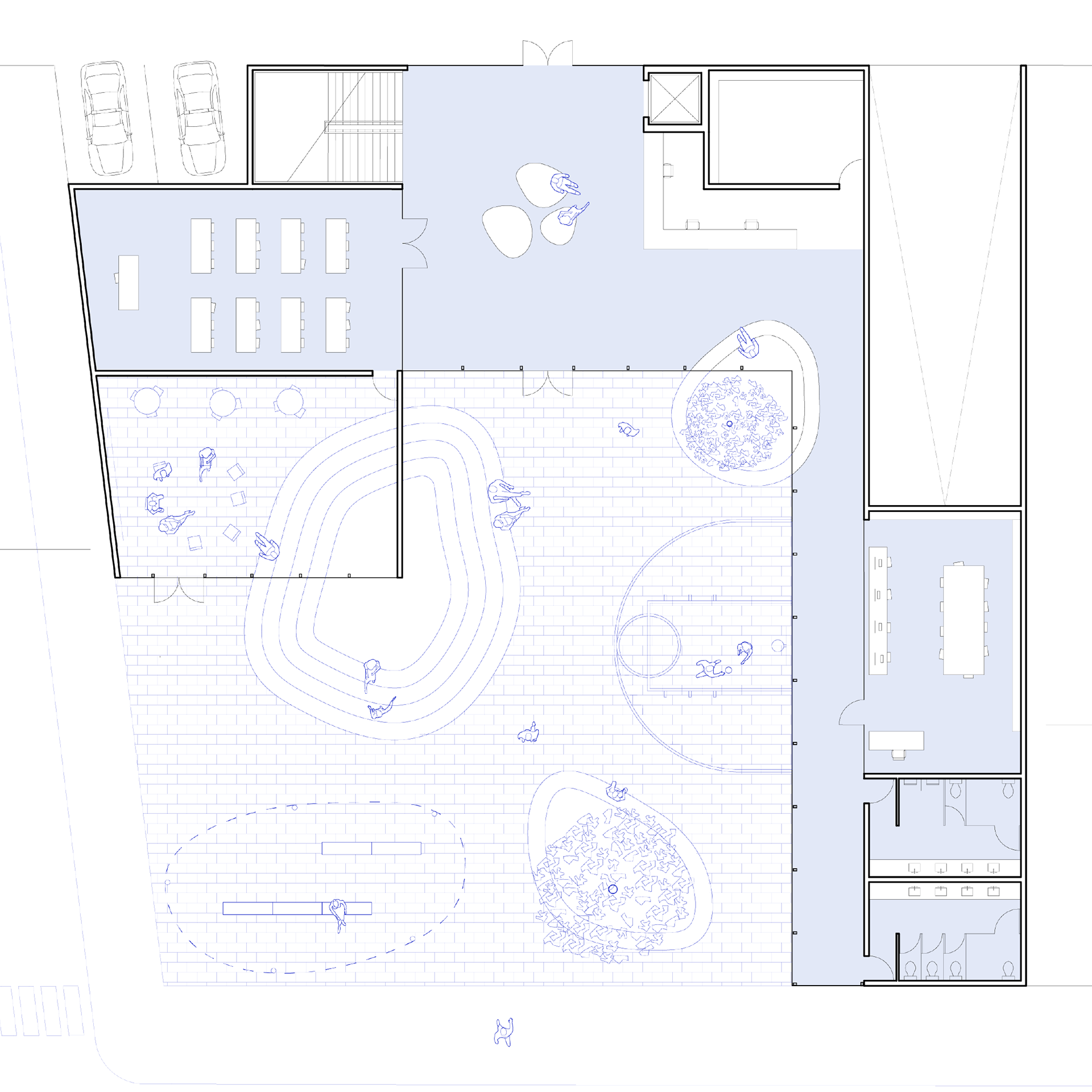
The police station has long been thought of as a space used by the police to serve the public. This project reimagines the police station as a space that serves the public directly through the integration of recreation, education and hygiene facilities with regular police programming.